top of page
20.jpg

od 30 000 EUR
(boxLivingS)

Cena zahŕňa samostatný box  a montáž.  Dodávka boxu nie je zahrnutá v cene. 

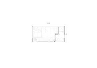
Dostupné rozmery:

boxS  (V 2.9m  x Š 3.0m x D 4.5m )  

boxM (V 2.9m  x Š 3.0m x D 6.0m ) 

boxL  (V 2.9m  x Š 3.0m x D 9.0m ) 



Potrebujete inú veľkosť?
Neváhajte nás kontaktovať.

BoxLiving je navrhnutý pre tých ktorý hľadajú miesto na bývanie či už pre osobné alebo biznisové účely. V ponuke sú 3 veľkosti. 

 

 



 

19.jpg
11.jpg
OFFICE L.jpg
LIVING S.jpg

boxS

LIVING M.jpg

boxM

LIVING L.jpg

boxL

POLLUX STEEL, s. r. o.

Kynceľová 2012
974 01 Kynceľová

0918 323 410

Mgr. Martina Liptáková Ondrišová

bottom of page